Ruimtelijke studie nieuwbouw appartementen
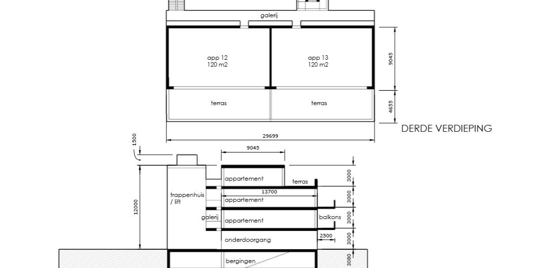
Voor een projectontwikkelaar zijn we momenteel een locatie aan het onderzoeken voor de nieuwbouw van middelgrote appartementen. Het complex telt 4 bouwlagen en een (fietsen-)kelder. Op de begane grond komt de onderdoorgang naar de parkeerplaatsen op het eigen achterterrein. De eerste en tweede verdieping hebben 4 appartementen van ca. 90 m2 en op de bovenste woonlaag zkomen twee woningen van ca. 120 m2 met een groot dakterras. De woningen hebben op het zuiden een groot balkon en worden op het noorden ontsloten door een galerij.


