Spring naar content
Archstudio Architecten
Architectenbureau in Haarlem
Archstudio ArchitectenArchstudio Architecten
  • HOME
  • PROJECTEN
  • NIEUWS
  • BUREAU
  • CONTACT
Zoeken:
  • HOME
  • PROJECTEN
  • NIEUWS
  • BUREAU
  • CONTACT
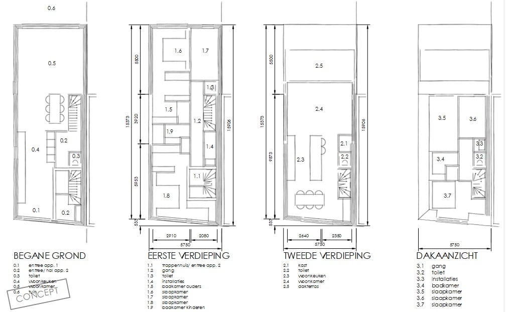
interieur verbouwing appartementen

interieur verbouwing appartementen

Deel deze afbeelding
Deel op FacebookDeel op Facebook Share on XDeel op X Pin itDeel op Pinterest Deel op LinkedInDeel op LinkedIn
© Archstudio Architecten 2017
  • HOME
  • PROJECTEN
  • NIEUWS
  • BUREAU
  • CONTACT
  • PRIVACY
FOOTER-NL
Terug naar boven