Uitbreiding monument Haarlem
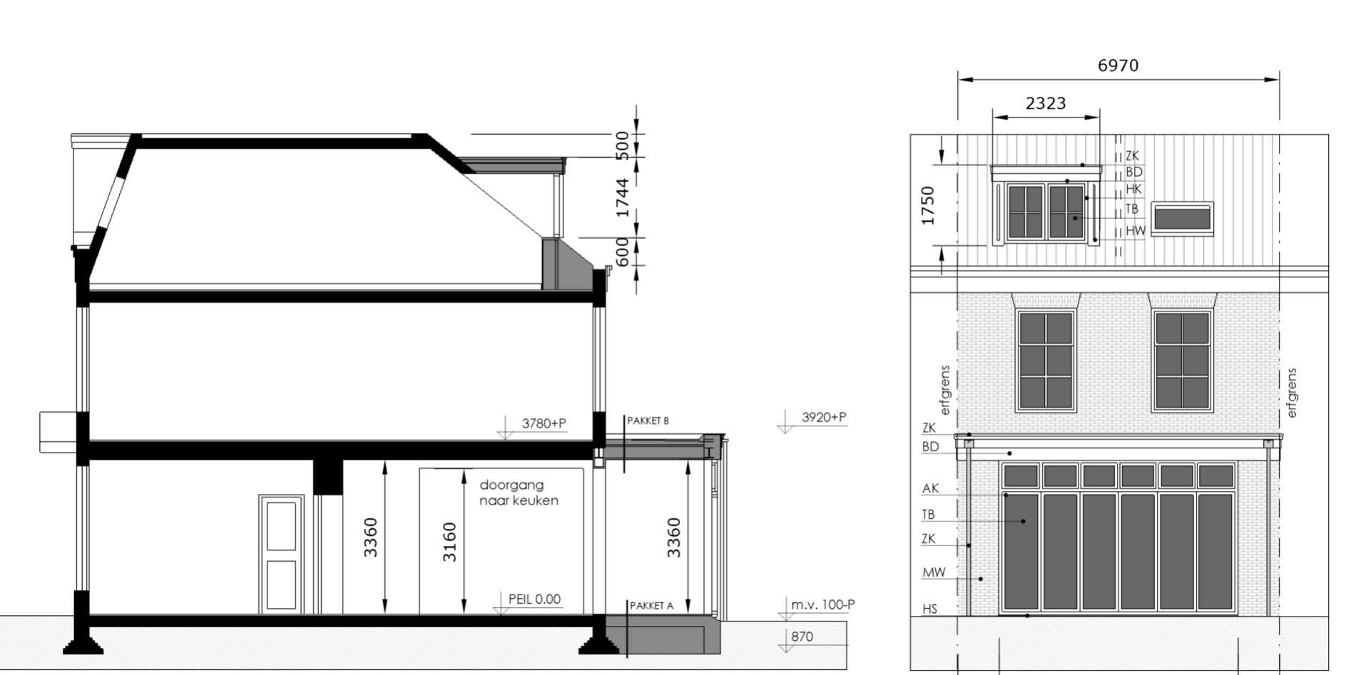
Aan de prachtig gelegen Schotersingel in Haarlem zijn we momenteel bezig met een ontwerp voor de uitbreiding van een stadsvilla. Binnen de voorschriften van het berstemmingsplan wordt aan de achtergevel, over de volledige breedte, een 2,5 meter diepe aanbouw geplaatst. Dit geeft vanuit het interieur net dat beetje meer ruimte om een mooie moderne eetkeuken te creeren. De overige twee kamers, rijk gedetailleerd en voorzien van mooie schouwen en ornamentenplafonds, blijven in originele staat.
De structuur van de achtergevel blijft behouden en de oorspronkelijke kozijnopeningen blijven ook in het nieuwe ontwerp afleesbaar. De uitbreiding wordt voorzien van een aluminium harmonica pui, zodat op moie dagen, de gehele achtergevel open gezet kan worden en de verbinding met de tuin wordt vergroot.


