Interieur appartementen Haarlem
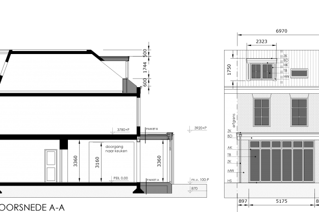
Interieur appartementen Haarlem Naast het effectief vertalen van de wensen van de opdrachtgever in goed bruikbare plattegronden, is er bij ons bureau ook altijd aandacht voor elementen die niet zichtbaar zijn op de tekeningen: daglicht! Een erg belangrijk onderdeel van een goed ontwerp. Licht zorgt voor orientatie en geeft gevoel van ruimte. In dit specifieke…
Lees verder!








































